Pluie, neige, soleil, gouttes du toit - tout ce que vous ne voulez pas vraiment ressentir sur vous-même, debout sur le porche de la maison. C'est pour cela que des auvents et des auvents spéciaux sont montés. En même temps, ils complètent la façade et rendent l'extérieur du bâtiment encore plus holistique, harmonieux et complet. Dans cet article nous vous dirons quelle matière choisir et comment fabriquer vous-même une visière !
Formes d'auvent
La forme et la taille de la visière jouent un rôle déterminant dans son choix. Il doit être légèrement plus large que l'entrée pour le préserver des précipitations. Calculez la profondeur selon vos envies, l'architecture de la maison et la taille du porche : en moyenne, de 0,5 à 2 m.
Selon le type de toiture et la présence de pentes, les auvents sont droits, inclinés ou en relief. Incliné - ce sont des modèles simples et à pignon, et les modèles en relief comprennent des modèles pyramidaux, arqués, arqués et autres modèles inhabituels. Quelle que soit la configuration, un système de drainage doit être prévu afin que les précipitations ne s'accumulent pas en un seul endroit.
Matériaux de la visière
Un auvent de porche de haute qualité est durable et peut résister à toutes les conditions météorologiques défavorables. Tout peut être utilisé : bois, verre, métal, polycarbonate, différents types de toiture. Si vous choisissez des matériaux lourds, veillez à prendre en compte la charge sur le cadre: par exemple, des poutres renforcées de section accrue sont nécessaires pour les carreaux de céramique.
Auvents en polycarbonate
Le polycarbonate est un matériau durable et peu exigeant avec jusqu'à 86 % de transparence. Il est robuste, ne craint pas les températures extrêmes, la corrosion, les champignons et la pourriture. Il n'est pas affecté par l'humidité et la lumière ultraviolette, et il est presque impossible de le rayer ou de l'endommager.
Le polycarbonate peut être cellulaire et monolithique - selon la forme et la taille de la visière que vous souhaitez. Il est flexible et peut être façonné sous différentes formes pour les auvents bouclés et en relief. Dans le même temps, il ne nécessite pas de cadre renforcé et ne crée pas de contraintes supplémentaires sur la façade ou les fondations.
La visière en polycarbonate peut être achetée toute faite ou fabriquée vous-même. Le principal inconvénient du matériau est son aspect caractéristique. Il peut ne pas convenir tout à fait aux maisons en rondins classiques, aux chalets de campagne, provençaux ou nordiques.
Auvent en bois
Le bois est le matériau le plus écologique et le plus diversifié, complétant idéalement les mêmes maisons en bois. Dans le sillage des éco-tendances, il est utilisé pour la fabrication de tout : auvents, tonnelles, vérandas. Il est facile à travailler et à manipuler, à peindre, à vernir, à sculpter et à décorer.
Différents types de bois diffèrent par leur résistance et leur résistance à l'humidité, mais tous sont encore assez sensibles aux influences extérieures. Une telle visière devra être régulièrement entretenue, et dans les régions froides et humides elle peut être impraticable au départ. Avec une préparation et une imprégnation appropriées du bois, la visière vivra 7 à 10 ans.
Auvents en verre
L'utilisation du verre pour les visières est une solution ambiguë, autour de laquelle il existe de nombreux mythes. On pense que c'est trop fragile et pas le matériau le plus pratique. Mais depuis longtemps, les fabricants créent du verre trempé résistant aux chocs et presque impossible à endommager. Et même s'il se brise, il s'effrite en petits fragments sûrs.
Le principal avantage du verre est son aspect esthétique, qui complète parfaitement l'architecture moderne. Vous pouvez expérimenter la teinture et la décoration, n'ayez pas peur de la rouille et de la pourriture. Le seul point négatif est que le verre nécessite un entretien pour qu'il ne laisse pas de traces et de taches après la pluie.
Auvents de toit en métal
La tuile métallique est un matériau de toiture à haute résistance avec d'excellentes caractéristiques techniques. Il est durable et sans prétention, il est presque impossible de l'endommager.Les tuiles métalliques ont les meilleures propriétés anti-vandalisme des revêtements de toiture populaires.
La durée de vie d'une telle visière peut facilement atteindre 50 ans sans soins particuliers. Et pendant tout ce temps, il ne se décolore pas, ne rouille pas et ne perd pas son aspect attrayant. La tuile métallique est combinée avec d'autres matériaux de construction, mais nécessite une préparation spéciale de la base lors de l'installation.
Auvents en carton ondulé
Les platelages ou profilés métalliques sont des tôles d'acier laminées à froid recouvertes d'une couche protectrice de polymère. Leurs principaux avantages sont un faible coût combiné à une résistance mécanique et une durabilité accrues. Dans l'assortiment des fabricants, vous pouvez trouver des couleurs d'une palette large et diversifiée.
Il est facile de travailler avec du carton ondulé, il ne nécessite pas de préparation complexe et n'alourdit pas la base, ne nécessite pas de traitement et d'entretien particuliers. Gardez simplement à l'esprit qu'il est préférable de le combiner avec un toit en carton ondulé avec un toit identique. Et lors de fortes pluies, de grêle ou de rafales de vent, les tôles d'acier seront plus bruyantes que le bois ou le polycarbonate.
Visières en fer forgé
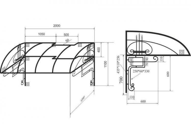
Les visières en métal forgé sont un accessoire de décoration, pas une véritable protection fonctionnelle. Ils complètent les maisons classiques et le style rustique. Il s'agit d'une combinaison traditionnelle avec des structures en bois qui ne se démoderont jamais.
Les technologies de forgeage modernes vous permettent de créer les motifs les plus intéressants et les plus bizarres. Maintenant, c'est beaucoup plus abordable, car auparavant, seuls les riches et les aristocrates pouvaient se permettre un tel luxe. Et les éléments forgés conservent leur aspect attrayant pendant des décennies, indépendamment du gel, de la neige, de la chaleur ou de la pluie.
Façons de fixer la visière au mur
Les visières sont fixées de différentes manières, en fonction du poids et de la configuration. Les supports de support nécessitent des supports de support spéciaux - c'est une option pour les grands auvents et les matériaux de toiture lourds, tandis que ceux suspendus sont montés directement au mur. Les stores fonctionnels protègent des intempéries et les stores décoratifs complètent les compositions artistiques pour l'aménagement extérieur et paysager.
Nous fabriquons une visière de nos propres mains!
Vous pouvez même installer la visière vous-même - vous n'avez pas besoin de compétences professionnelles complexes. Mais n'oubliez pas la sécurité : il est important que la structure soit aussi solide et durable que possible. La visière doit facilement résister aux charges de vent, de pluie et de neige.
Visière en bois bricolage sur le porche
Pour l'auvent à pente unique le plus simple, vous aurez besoin de contreplaqué résistant à l'humidité de taille appropriée, d'une planche ou d'une doublure et d'une feuille de fer galvanisé. La structure élémentaire est constituée de trois traverses sur poteaux verticaux, qui peuvent être rendues décoratives.
Esquissez d'abord le contour et le pochoir des pièces d'angle, puis transférez le motif sur le contreplaqué. Il est préférable de répéter les pièces par copie directe pour éviter des inexactitudes dimensionnelles minimales. Découpez les pièces et poncez soigneusement toute la surface et les bords avec une feuille de papier de verre.
Découpez la planche avant et, pour la beauté, laissez les éléments sculptés avec des motifs répétitifs dessus. Pour la rigidité de la structure, posez les pièces de contreplaqué perpendiculairement et installez la traverse centrale. Si vous avez une corniche très large, vous pouvez faire plus d'éléments de support, mais pensez à l'avance comment les installer au-dessus de l'entrée.
Traitez le bois avec des composés protecteurs et un vernis imperméable, peignez si vous le souhaitez. La tôle d'acier deviendra un revêtement de toit protecteur, mais vous pouvez la remplacer par du carton ondulé. N'oubliez pas de replier l'arrière pour protéger la culée et les petits creux de 1 à 2 cm pour recueillir les sédiments et l'eau de fonte.
Visière de pignon de bricolage
L'auvent du pignon est fait de poutres en bois et gainé de clins. Vous aurez besoin de poteaux de support d'angle qui maintiennent la structure de l'auvent, la base ou le cadre du chevron, le cadre et la couverture du toit.Pour cela, utilisez des tuiles métalliques, des bardeaux ou tout autre matériau de votre choix.
Fixez des morceaux de bois verticaux sur le mur au-dessus du porche - ce sera la base des supports en forme de L. Installez ensuite les poutres horizontales et fixez les entretoises avec des vis autotaraudeuses. Surveillez en permanence le niveau, vertical et horizontal pour maintenir le niveau de la structure.
Pour un auvent large, trois paires de chevrons suffisent pour la charpente, mais si vous utilisez un revêtement lourd, faites-en plus. Coupez une barre triangulaire à chaque coin pour plus de stabilité, afin de ne pas laisser de vide. Il peut être collé avec de la colle ordinaire et ensuite seulement fixé avec une vis autotaraudeuse tous ensemble.
Pistes générales toutes faites avec des planches à clin ou à rainures et languettes - mais toujours légères. Poser une couche d'étanchéité ou une dalle OSB, puis procéder à la pose de la couverture principale.
Visière en polycarbonate bricolage
Choisissez le polycarbonate : le solide est plus solide, mais plus lourd, et le cellulaire est plus léger, mais moins résistant. Pour les auvents, auvents et structures similaires, une feuille en nid d'abeille d'une épaisseur de 8 à 10 mm est suffisante. Gardez à l'esprit que la feuille devra être positionnée de manière à ce que le condensat interne puisse facilement s'écouler le long des bords internes vers l'extérieur.
Le polycarbonate est recouvert d'un film protecteur qui augmente sa résistance aux UV. Les trous pour les fixations doivent être légèrement plus grands que leur diamètre - ce sont des jeux thermiques. Utilisez des rondelles et des joints en caoutchouc sous les vis pour empêcher la saleté de pénétrer dans les joints.
Lors de l'assemblage des tôles, utilisez les bandes de raccordement qui cachent le joint de dilatation. Fermer les extrémités avec des tampons pour l'évacuation des condensats ou coller avec du ruban adhésif. Si vous devez plier le polycarbonate en arc, faites-le immédiatement sur le cadre perpendiculairement aux canaux intérieurs et avec un rayon de 80 cm.
Visière de soutien bricolage
Au début, la construction de la visière de support n'est pas différente des autres à une, deux pentes ou arquées - répétez toutes les étapes jusqu'à l'étape d'installation. La principale différence dans le processus d'installation est que vous avez besoin de poteaux verticaux. Avec un cadre en bois, utilisez une barre de plus grande section, et avec un cadre en métal, soudez-y les tuyaux de support, puis poncez, apprêtez et peignez les joints.
Visière sur le porche - idées de photos
Un auvent de porche est un achat utile pour toute maison. Ils diffèrent par leurs formes, leurs matériaux et leur apparence, donc parmi toute la variété, vous pouvez facilement trouver une option pour vous-même. Regardez et inspirez-vous !


